Kód ELFETEX
10.342.564
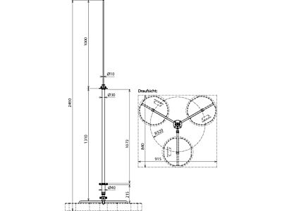
Stožár DEHN 819282 jímací v.2,3m pro HVI
Informace o produktu
Jímací stožár 30 pro vodiče HVI-light, pro instalaci na plochou střechu se sklonem max. 10°. Kompletní sestava s připojovací destičkou na připojení vodičů vodičů HVI-light. Upevňovací sada pro montáž vedení a tříramenného stojanu. Provedení SET I, celková výška 2300 mm, obsahuje podpůrnou trubku GFK/Al a jímací tyč.
- Značka DEHN
Jímače hromosvodu
- Délka/výška 2300 mm
- Průměr od / do 10.0 - 30.0 mm
- Provedení Jímací tyč se stativem
- Materiál dutinky Nerezová ocel (V2A)
- Povrchová úprava Bez povrchové úpravy
- Připojení Kruhový vodič
Ke stažení
Všechny obrázky











