Kód ELFETEX
11.228.546
FENIX Rám E 600/700 pro zapuštění ECOSUN 600/700 U
Informace o produktu
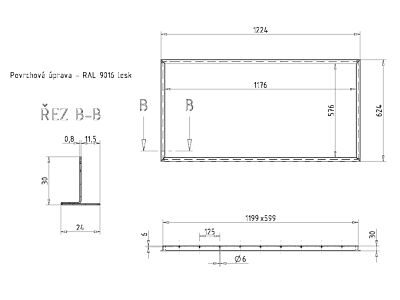
Zápustný rám E 600/700
Zápustný rám je určen pro zapuštění nízkoteplotních sálavých panelů ECOSUN U+ do SáDroKartonových (SDK) nebo SáDroVláknitých (SDV) podhledů. Čelní strana topného panelu je zalícována s podhledem stropu, rám pak tvoří pohledové zakončení hran SDK/SDV desky.
- Značka FENIX
Konzoly pro vytápění / klimatizaci / větrání
- Použití Elektrické ústřední topení
- Provedení Nástěnné konzole
Ke stažení
Všechny obrázky











