Kód ELFETEX
10.220.986
Informace o produktu
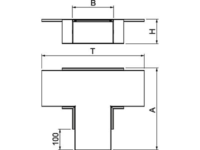
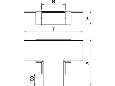
Odbočný díl T s intumescentní protipožární textilií pro instalační kanál PYROLINE® Rapid PLM. Vhodný pro přímou montáž na stěnu a strop, pod systémové podlahy a na nosné systémy. Montáž míst styku bez použití nástrojů pomocí spojky PLM SI. Víko se naklapává bez použití nástrojů a dovoluje rychlé revize a dodatečné osazování kabelů. Přesah víka umožňuje namontovat víko s přesazením pro nepřerušované vyrovnání potenciálů v celé trase kanálu.
- Značka OBO BETTERMANN
T-kusy pro protipožární ochranné kanály
- Barva Bílá
- číslo RAL 9010
- Povrchová úprava Opatřené povlakem
- Počet stran odolných proti plameni 4
- Se spodní perforací (dna) Ano
- Možnost příčky, přepážky Ano
- Opláštění Ocel
- Venkovní šířka 200 mm
- Venkovní výška 120 mm
Ke stažení
Všechny obrázky











