Kód ELFETEX
10.220.986
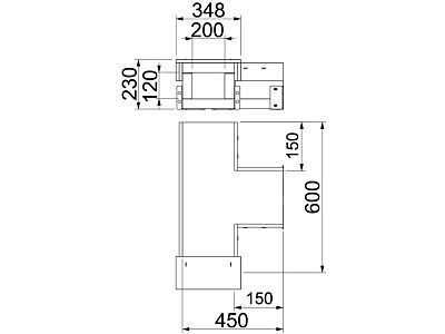
OBO BETTERMANN Díl T, pro PYROLINE Con, 200x120, šedá Odlehčený beton se skleněnými vlákny typ PLCS T091220
Informace o produktu
T-kus pro protipožární kanál PYROLINE® Con S EI90, typ PLCS D091220 skládající se z vodě a mrazu odolného lehkého sklovláknitého betonu pro zhotovení T-spojek v průběhu kanálu. Smontované spojovací kování zajišťuje rychlou montáž na místě, volně položená víka zaručují rychlou revizi a dodatečné osazování.
Včetně spojovacích šroubů a těsnicích pásků.
- Značka OBO BETTERMANN
T-kusy pro protipožární ochranné kanály
- Barva Šedá
- Typ izolačního materiálu Lehký beton se skleněnými vlákny
- Vnitřní šířka 200 mm
- Vnitřní výška 120 mm
- Počet stran odolných proti plameni 4
- Se spodní perforací (dna) Ne
- Opláštění Bez
- Venkovní šířka 348 mm
- Venkovní výška 230 mm
Ke stažení
Všechny obrázky











