Kód ELFETEX
10.735.660
Informace o produktu
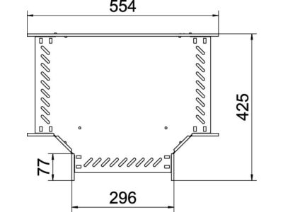
Díl T pro vytvoření vodorovné odbočky, tvarový díl pro naklapávací i šroubovací kabelové žlaby, výška bočnice 110 mm. Bezšroubová montáž pomocí dvojitých svorek nebo spojení pomocí šroubů s plochou kulovou hlavou FRS a matic kombi M6. Lze použít v interiéru i ve venkovním prostředí. Upevňovací materiál je nutné objednat samostatně.
- Značka OBO BETTERMANN
T-kusy pro kabelové žlaby
- Barva Zinek
- Provedení Zabudovaný konektor
- Povrchová úprava Pozinkování žárové
- Konstrukční typ T-kus vodorovně
- Rozsah provozních teplot -20 - 120 °C
- Materiál Ocel
- Šířka kabelového žlabu 300 mm
- Výška kabelového žlabu 110 mm
- Perforace NATO Ne
- Nerezová ocel, mořeno Ne
- Vhodné pro funkční integritu Ne
Ke stažení
Všechny obrázky











