Kód ELFETEX
10.735.660
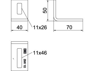
OBO BETTERMANN Upevňovací úhelník BW 10, Nerez ocel, materiál 1.4307, A2, 1.4301 bez povrch. úpravy, dodatečně ošetřeno typ BW 10 A2
Informace o produktu
Upevňovací úhelník pro upevnění závěsů, stoupacích žebříků a konstrukcí ke stěnám, stropům nebo ocelovému lešení.
- Značka OBO BETTERMANN
Montážní prvky na závěsnou /profilovou lištu
- Provedení Konzola, Montážní úhelník, držák
- Vhodné pro U-profil
- Povrchová úprava Ostatní, jiné
- Kvalita materiálu Nerezová a kyselinovzdorná ocel
- Materiál dutinky Nerez
- S příslušenstvím šroubováku Ne
Ke stažení
Všechny obrázky











