Kód ELFETEX
11.319.770
ER-CPI 70-1100-12
Informace o produktu
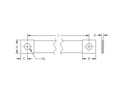
Nerezový pletenec CPI 70-1100-12, 554384
- Značka ERICO
Zemnící pásky
- Jmenovitý průřez vodiče 70.0 mm²
- Tvar vodiče / kabelu Plochý
- Třída vodiče Třída 5 = flexibilní
- Kabel šířka cca 30.0 mm
- Kabel výška cca 5.8 mm
- Délka 1100.0 mm
- Materiál vodiče Ostatní, jiné
- Povrch vodiče Lesklý
Ke stažení
Všechny obrázky


























