Kód ELFETEX
11.137.447
CPI 70-150-12 Nerezovy zemnici pletenec
Informace o produktu
Nerezový pletenec CPI 70-150-12, 554365
- Značka ERICO
Zemnící pásky
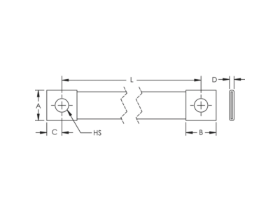
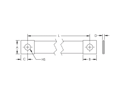
- Jmenovitý průřez vodiče 70.0 mm²
- Tvar vodiče / kabelu Plochý
- Třída vodiče Třída 5 = flexibilní
- Kabel šířka cca 30.0 mm
- Kabel výška cca 5.8 mm
- Délka 150.0 mm
- Materiál vodiče Ostatní, jiné
- Povrch vodiče Lesklý
Ke stažení
Všechny obrázky



























