Kód ELFETEX
10.477.401
OBO BETTERMANN Čtvercová kazeta RKN2 UZD3 4VS20
Informace o produktu
Nivelovatelná „zaslepovací“ kazeta odpojená od podlahy pro zhotovení revizního otvoru jmenovité velikosti 4 v podlahách se suchou nebo mokrou údržbou v interiéru, k montáži do podlahových krabic UZD250 nebo UZD350, vždy ve spojení s montážním víkem DUG../4, nebo do krabic UGD250 3/4 či UGD350 3/4. Montáž se provádí pomocí nivelačních úhelníků (objednávejte zvlášť) v hliníkovém rámovém profilu podlahových krabic. Vhodná jen pro hladké podlahové krytiny.
- Značka OBO BETTERMANN
Nivelizovatelné krabice pro dvojité a duté podlahy
- Minimální montážní hloubka 105 mm
- Údržba podlahy Mokrý
- Provedení Čtvercový
- Materiál Nerez
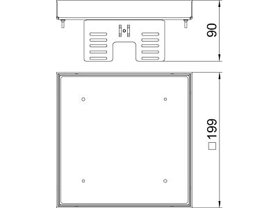
- Šířka montážní rozměr 201 mm
- Zařízení pro uchycení přístrojových krabic Ne
- Délka montážní rozměr 201 mm
- Nivelační výška - - - mm
Ke stažení
Všechny obrázky

















