Kód ELFETEX
10.910.712
OBO BETTERMANN Kabelový žlab SKSMU SKSMU 640 FT
Informace o produktu
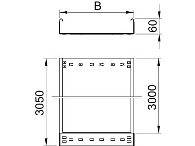
Neděrovaný kabelový žlab s integrovaným rychloupevňovacím systémem. Užitečná délka kabelového žlabu činí 3 000 mm.
- Značka OBO BETTERMANN
Kabelové žlaby /kabelové žlaby se širokým rozpětím
- Šířka 400 mm
- Provedení Zabudovaný konektor
- Výška 60 mm
- Povrchová úprava Pozinkování žárové
- Tloušťka materiálu 1.5 mm
- Délka 3050 mm
- Materiál Ocel
- Efektivní průřez 23800 mm²
- Hmotnost 6.82 kg/m
- Boční perforace Ne
- Montážní díry v podlaze Ne
- Perforace NATO Ne
- Vhodné pro funkční integritu Ne
- s krytem Ne
- Typ zátěžového testu podle IEC 61537 Typ II
- Barva Zinek
- Typ konektoru Připevnění naklapnutím
- Pracovní délka 3000 mm
- Možná rozteč podpěr 1.5 - 3 m
- Bezpečné pracovní zatížení podle IEC 61537 při rozteči podpěr 1,5 m 2600 N/m
- Bezpečné pracovní zatížení podle IEC 61537 při rozteči podpěr 2,0 m 1900 N/m
- Bezpečné pracovní zatížení podle IEC 61537 při rozteči podpěr 2,5 m 1100 N/m
- Bezpečné pracovní zatížení podle IEC 61537 při rozteči podpěr 3,0 m 550 N/m
Ke stažení
Všechny obrázky















