Kód ELFETEX
10.036.500
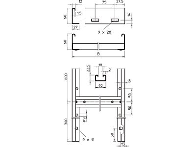
OBO BETTERMANN Stoupací žebřík středně těžký SLL 630 CPS 4 FS
Informace o produktu
Kabelový žebřík s výškou bočnice 60 mm s přinýtovanými nahoru otevřenými příčkami profilu C.
- Značka OBO BETTERMANN
Kabelové lávky /kabelové žebříky s velkým rozpětím
- Barva Zinek
- Šířka 300 mm
- Výška 60 mm
- Povrchová úprava Průběžně pozinkované
- Hmotnost 3.01 kg/m
- Typ příčky Profil perforovaný
- Boční perforace Ano
- Délka 6000 mm
- Materiál Ocel
- Efektivní průřez 11400 mm²
- Vhodné pro funkční integritu Ne
- Rozteč příček 600 mm
- Stoupací trasa Ano
- Rozsah provozních teplot - - - °C
- Možná rozteč podpěr - - - m
Ke stažení
Všechny obrázky













