Kód ELFETEX
10.678.330
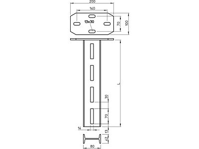
OBO BETTERMANN Závěs IS 8 K 140 FT
Informace o produktu
Závěs (profil I) s navařenou základovou deskou. Pro upevnění na vodorovné betonové stropy a ocelové nosníky.
- Značka OBO BETTERMANN
Stropní závěsy pro kabelový nosný systém
- Provedení I-profil
- Povrchová úprava Pozinkování žárové
- Délka 1400 mm
- Materiál dutinky Ocel
- Nosnost 12 kN
- Šířka profilu 80 mm
- Výška profilu 42 mm
- Hmotnost 9.02 kg
- Barva Zinek
- Vhodné pro funkční integritu Ne
Ke stažení
Všechny obrázky













