Kód ELFETEX
10.075.084
OBO BETTERMANN Stoupací žebřík Industrie SLS 80 C40 6 FT
Informace o produktu
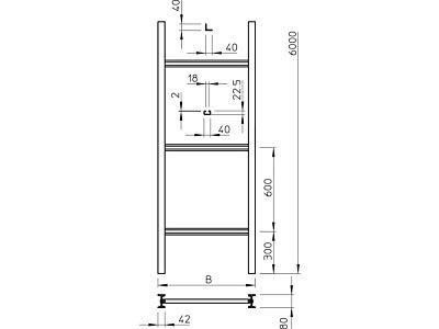
Stoupací žebřík s výškou bočnice 80 mm s přišroubovanými příčkami.
- Značka OBO BETTERMANN
Kabelové lávky /kabelové žebříky s velkým rozpětím
- Barva Zinek
- Šířka 600 mm
- Výška 80 mm
- Povrchová úprava Pozinkování žárové
- Hmotnost 13.88 kg/m
- Typ příčky Profil neperforovaný
- Boční perforace Ano
- Délka 6000 mm
- Materiál Ocel
- Vhodné pro funkční integritu Ne
- Rozteč příček 600 mm
- Stoupací trasa Ano
Ke stažení
Všechny obrázky















